091-00.00.0100-02
для После 2006 г.в.
| Номер |
Наименование |
№ чертежа |
Кол-во |
Вес |
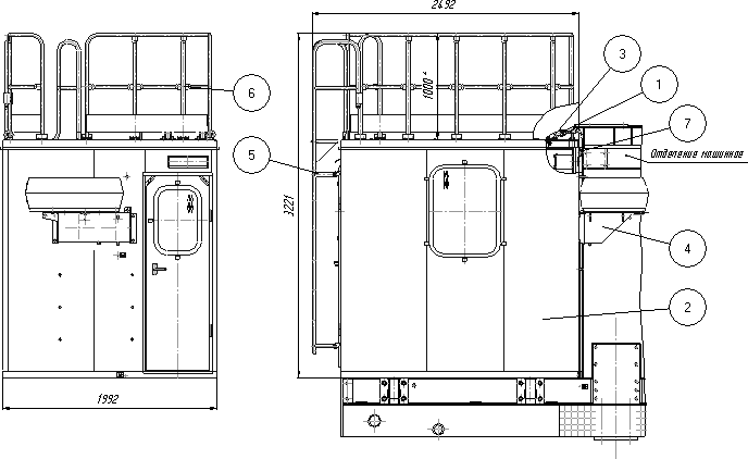
| 1 |
Тяга |
091-02.09.0131 |
|
|
| 2 |
Кабина |
091-12.00.0300-02 |
|
|
| 3 |
Кронштейн |
091-12.00.0301 |
|
|
| 4 |
Установка кондиционера |
091-12.00.0310 |
|
|
| 5 |
Установка лестницы на кабину |
091-12.00.0330 |
|
|
| 6 |
Ограждение крыши кабины |
091-12.00.0340 |
|
|
| 7 |
Уплотнение |
091-12.00.3000 |
|
|
|